Schüttguterfahrung gefragt





CITplus - Die Verwirklichung der diversen Förderverfahren für Schüttgüter mit ihren charakteristischen Strömungszuständen setzt umfassende Kenntnisse der Strömungstechnik voraus. Bei der Umsetzung der verfahrenstechnischen Vorgaben in ausgereifte Systeme ist der schüttguterfahrene Konstrukteur gefordert.
Schüttgüter weisen, bedingt durch Korngröße und -verteilung, Schüttgutdichte, Schüttwinkel, Feuchtigkeit, Temperatur und Reibungswiderstand unterschiedlichste Eigenschaften auf. Als weitere Schüttgut-Merkmale werden definiert „abrasiv", „kohäsiv", „empfindlich", „heiß", „feucht", „nicht fließfähig" etc. Zudem zeigen, aufgrund des globalen Markts für die internationale Beschaffung von Roh- und Hilfsstoffen unterschiedlichster Herkunft, Produkte gleichen Namens, gleicher chemischer Formel und Körnung sehr unterschiedliche Fließverhalten. Anlagen, die problemlos betrieben wurden, können plötzlich Störungen aufweisen. Der Anspruch an ein individuelles Schüttgut-Handling sowie die Entwicklung geeigneter Verfahren ist entsprechend hoch.
Die unterschiedlichen Schüttguteigenschaften haben entscheidende Bedeutung für die Auswahl des richtigen Förderverfahrens und sind in den erzeugbaren Strömungszuständen sowohl als Druck- als auch Vakuumförderung zu berücksichtigen. Umfassende Kenntnisse der Schüttguteigenschaften bzw. deren Ermittlung sind unbedingt notwendig.
D. Geldart (Types of gas fluidization. Powder Technol. 7 (1973), S. 285/292) teilt die Schüttgüter nach ihrem Fluidisierungsverhalten und dem Lufthaltevermögen in die Gruppen A, B, C, D ein und stellt damit eine grobe Gliederung bezüglich des Förderverhaltens zu Verfügung.
Gliederung bezüglich des Förderverhaltens (nach Geldart)
A) feinkörnige Pulver geringer Dichte, gut fluidisierbar mit gutem Lufthaltevermögen
B) mittlere Körnungen mittlerer Dichte, fluidisierbar mit schlechtem Lufthaltevermögen
C) feine Pulver höherer Dichte, kohäsiv, schwierig zu fluidisieren mit schlechtem Lufthaltevermögen
D) gröbere Körnungen höherer Dichte, nicht fluidisierbar, kein Lufthaltevermögen
A. W. Jenike (Storage and Flow of Solids. Bull. Nr. 123, Utah Engng, Exp. Station, Univ. Of Utah, Salt Lake City (1964) beschreibt die Fließfähigkeit der Schüttgüter durch die Fließfunktion FFC und stellt damit eine grobe Gliederung bezüglich des Auslaufverhaltens aus Behältern zu Verfügung.
Gliederung bezüglich des Auslaufverhaltens aus Behältern (nach Jenike)
Frei fließend 10 ≤ FFC < ∞
Fließend 4 ≤ FFC < 10
Kohäsiv 2 ≤ FFC < 4
Sehr kohäsiv 1 ≤ FFC < 2
Nicht fließend, aushärtend FFC < 1
Nachdem bei der Planung von pneumatischen Fördersystemen sowohl das Förderverhalten als auch das Auslaufverhalten aus Behältern relevant ist, sind beide in die Beurteilung einzubeziehen.
Dazu kommen die generelle Aufgabenstellung und die spezifischen Anforderungen, wie Erhaltung der Produkteigenschaften, Körnung, Volumen, Schüttgewicht, keine Kontamination etc.
Fließverhalten verschiedener Produkte im Überblick
Die Tabelle 1 zeigt an Beispielprodukten und deren allgemeiner Beschreibung die generelle Einteilung nach Geldart und Jenike sowie die jeweils prinzipiell geeigneten Förderverfahren.
Besondere Bedeutung kommt den energiesparenden sowie produkt- und anlagenschonenden Pfropfenförderverfahren zu. Produktpfropfen werden mit niedriger Geschwindigkeit von 0,5 bis ca. 5 m/s und hoher Beladung von bis zu 100 kg Produkt pro kg Förderluft gefördert. Damit wird Kornzerstörung verhindert sowie Produktabrieb und Anlagenverschleiß minimiert.
Mit dem deutschen Patent DE-PS 2-122858 des Autors H. J. Linder wurde 1970, laut Prof. Dr. Siegel (Pneumatische Förderung, Vogel Buchverlag, Würzburg, 1991) erstmals ein gesamtes Verfahren zur pneumatischen Pfropfenförderung beschrieben. Es zeichnet sich durch ein Impulsventil zum Bilden von Materialpfropfen aus. Zudem besitzt es eine zusätzliche Nebenleitung zur Speisung der Leistungsverstärker (Relaisstationen) in der Förderleitung. Diese reagieren auf den Absolutdruck in dem jeweiligen Förderleitungsabschnitt und übertragen auf diesen erforderlichenfalls Druckenergie. Dadurch werden Materialpfropfen weitertransportiert ohne sie aufzulösen. Ein entscheidender Vorteil sind die praktisch unbeschränkten Förderwege und Leistungen. Bei langsamer, schonender Förderung ab ca. 0,5 Metern pro Sekunde kommt es selbst bei hoher Beladung nicht zur Verstopfung. Aufgrund der niedrigen Fördergeschwindigkeit und der rein laminaren Bewegung der Materialpfropfen entsteht selbst bei hochempfindlichen Produkten, wie Sprühgranulaten, kaum Kornzerstörung und minimalster Abrieb bzw. bei extrem harten und abrasiven Schüttgütern, wie Siliziumkarbid oder Schleifmittel, kaum Anlagenverschleiß. In den erhaltenen Materialpfropfen befinden sich Partikel unterschiedlicher Größe und Dichte in relativer Ruhe zueinander. Dadurch werden Gemenge und aufbereitete Massen entmischungsfrei gefördert. Durch effiziente Nutzung der Druckenergie vermindert sich der Druckluftverbrauch und damit die laufenden Betriebskosten.
Mit dem solids Vibro Puls Pneu Verfahren (nach oben genanntem Patent) werden selbst feuchte, kohäsive, klebrige oder allgemein nicht fließfähige Schüttgüter durch den vibrierenden Sender sicher in das Förderleitungssystem eingeschleust und in Pfropfenform transportiert.
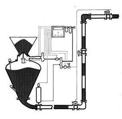
Das Puls-Pneu Förderverfahren
Durch Druckluftimpulse wird die kontinuierliche Materialsäule am Senderausgang in Luftpolster und Materialpfropfen aufgeteilt (siehe Grafik). Die Luftpolster wirken als Energiequelle zum Verschieben des jeweils vor ihnen liegenden Materialpfropfens. In die Förderleitung sind Relaisstationen eingebaut, die die Pfropfen auf Distanz halten. Die Relaisstationen werden durch eine Nebenleitung mit Druckluft versorgt und sind mit einem Regler ausgerüstet, der nur dann zusätzliche Druckenergie in die Förderleitung einspeist, wenn dies erforderlich ist.
Damit ist ein Verstopfen der Förderleitung praktisch unmöglich. Durch den Einsatz der Relaisstationen wird außerdem das problemlose Anfahren der Förderung gegen die volle Förderleitung nach einem evtl. Strom- bzw. Druckluftausfall sichergestellt. Jede Relaisstation arbeitet in diesem Fall wie ein kleiner Sender, wobei in Förderrichtung gesehen die letzte mit der Förderung beginnt.
Im zweiten Teil dieses Beitrages in der nächsten Ausgabe von CITplus werden anhand von Praxisbeispielen verschiedene pneumatische Fördersysteme vorgestellt.
Anbieter
system-technik GmbHLechwiesenstr. 21
86899 Landsberg
Deutschland
Meist gelesen

Radikaler Schnitt für gesundes Wachstum – CHT stellt sich neu auf
Die CHT Group gehört zu den Hidden Champions der deutschen Spezialchemie.

Continuous Manufacturing ganzheitlich bewerten
Die Investitionsentscheidung für eine kontinuierliche Produktion bedarf einer belastbaren Wirtschaftlichkeitsrechnung entlang des gesamten Prozesses.

Pioniere aus Tradition
Interview mit Peter Friesenhahn, CEO von Haltermann Carless, über die Ziele des Transformationsprogramms RACE und seine Pläne für das Unternehmen.

Verluste, die keiner sieht
In CCUS-Projekten der chemischen Industrie wird die präzise CO₂-Messung zur Schlüsseltechnologie - Coriolis-Systeme spielen dabei eine zentrale Rolle.

Auf der Suche nach der richtigen Formel
Europas Stärke liegt in der Verbindung von Prozesswissen, Anwendungskompetenz und Nachhaltigkeit



